5 000₽/м²
Дизайн-проект интерьера:
от идеи до полного
комплекта чертежей
комплекта чертежей
не просто картинки, а рабочий проект, по которому строители
и реализуют интерьер без ошибок и переделок.
и реализуют интерьер без ошибок и переделок.
Стиль и настроение
Коллаж/мудборд с подборкой стиля и цветовой гаммы
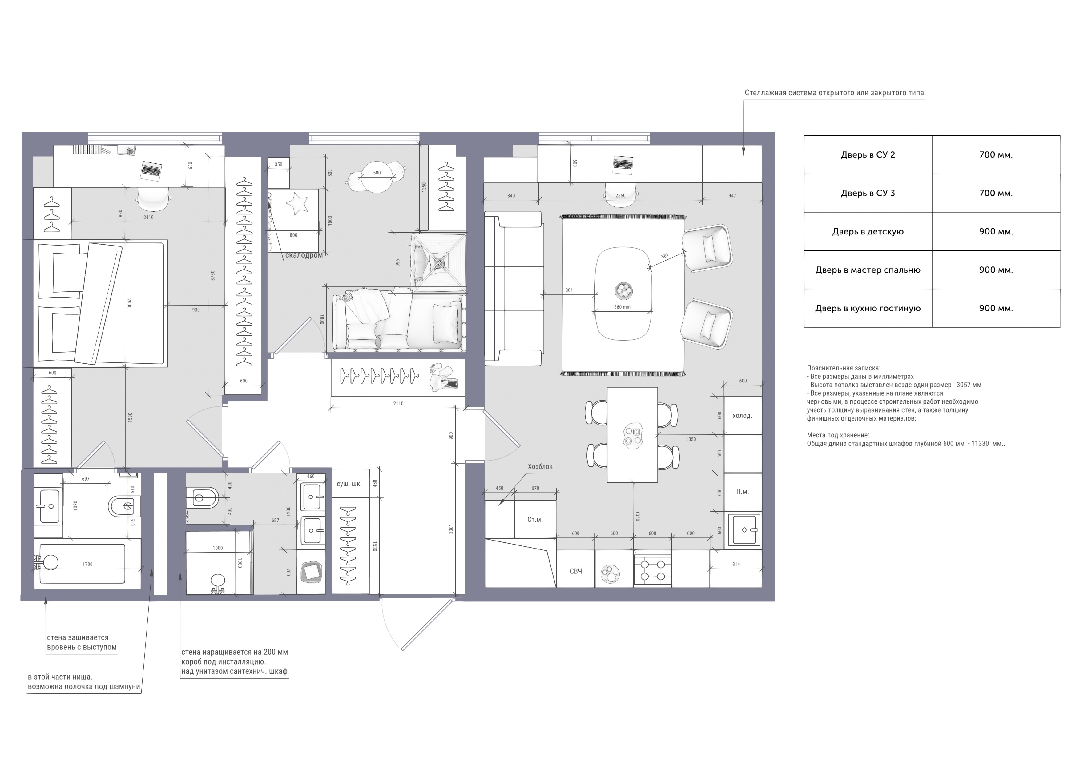
Полный комплект чертежей (рабочая документация)
✔️План демонтажа/монтажа перегородок
✔️План управления освещением и розетками
✔️Привязка освещения, электрооборудования, сантехники
✔️План потолков, полов, тёплых полов, дверей
✔️План отделки стен и обшивных материалов
✔️Развёртки по помещениям
✔️Подбор отделочных материалов, мебели, декора
✔️Ведомости материалов с артикулами и ссылками
✔️Комплектация материалов (закупка, логистика)
Кому подходит такое решение
✔️Для тех, кто хочет ремонт без переделок
✔️Для тех, кому нужен четкий план ремонта
✔️Для тех, кто не хочет сам искать материалы и мебель
Сделаем чертежи и документацию, готовый пакет для строителей
Составим полную комплектацию для закупки и организации поставок
На тарифе «3D плюс» сделаем визуализация
и покажем интерьер в 3D
Подготовим
планировочные решения
Разработаем стиль вашего пространства. Создадим мудборды и коллажи
Место под хранение велосипеда, когтеточка для кошки - учтем все!
Составим техническое задание. Мы зададим вам вопросы и заполним анкету.
Этапы создания дизайн-проекта
Сделаем чертежи и документацию, готовый пакет для строителей
Составим полную комплектацию для закупки и организации поставок
На тарифе «3D плюс» сделаем визуализация
и покажем интерьер в 3D
Подготовим
планировочные решения
Разработаем стиль вашего пространства. Создадим мудборды и коллажи
Место под хранение велосипеда, когтеточка для кошки - учтем все!
Составим техническое задание. Мы зададим вам вопросы и заполним анкету.
Этапы создания дизайн-проекта
Сколько стоит дизайн проект?
Тариф Стандартный
Планировочное решение
Коллажи
Рабочие чертежи
Коллажи
Рабочие чертежи
Тариф 3D плюс
6 500₽/м²
Планировочное решение
Коллажи
Рабочие чертежи
3D-визуализация
Коллажи
Рабочие чертежи
3D-визуализация
Хотите ремонт без хаоса и переделок?
Запишитесь на консультацию, и мы расскажем, как создать дизайн-проект вашего интерьера.
FAQ
Часто задаваемые вопросы