15 000₽
Экспресс‑дизайн комнаты за 3 дня
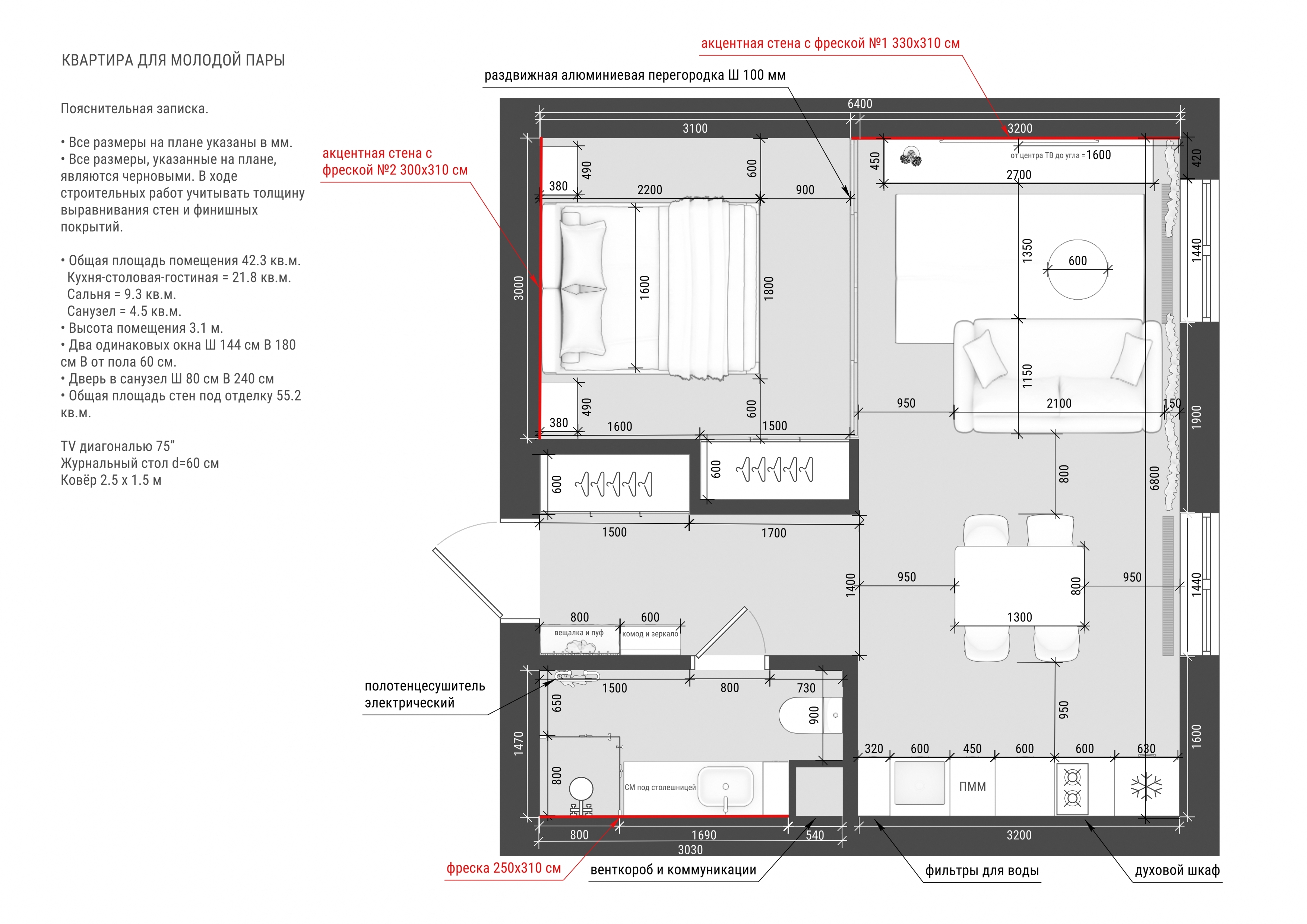
от идеи до полного комплекта чертежей
не просто картинки, а рабочий проект, по которому строители
и реализуют интерьер без ошибок и переделок.
и реализуют интерьер без ошибок и переделок.
Кому подходит такое решение
✔️ Нужно быстрое решение перед ремонтом
✔️Планируете покупку мебели и хотите «примерить»
✔️Требуется понятный ориентир без полного проекта
Почему мы
- 17 лет в интерьерах и авторских материалах
- Чёткий процесс и фиксированная цена
- Акцент на эстетике и функциональности
Экспресс-дизайн — это быстрый концепт для принятия решений. Он не включает правки, рабочие чертежи, подбор сметы или узаконивание перепланировок. Всё это можно заказать дополнительно.
получаете экспресс дизайн. можно сразу принимать решения по ремонту и мебели.
созваниваемся, уточняем стиль, задачи и детали, чтобы точно понимать ваши ожидания.
мы готовим планировку с расстановкой мебели и фотореалистичную визуализацию.
заполняете краткое ТЗ и пишете о пожеланиях
Готовое решение
Бриф-звонок (30–45 минут)
Работа над проектом (3 дня)
Оставляете заявку
Этапы создания дизайн-проекта
Экспресс-дизайн — это быстрый концепт для принятия решений. Он не включает правки, рабочие чертежи, подбор сметы или узаконивание перепланировок. Всё это можно заказать дополнительно.
получаете экспресс дизайн. можно сразу принимать решения по ремонту и мебели.
созваниваемся, уточняем стиль, задачи и детали, чтобы точно понимать ваши ожидания.
мы готовим планировку с расстановкой мебели и фотореалистичную визуализацию.
заполняете краткое ТЗ и пишете о пожеланиях
Готовое решение
Бриф-звонок (30–45 минут)
Работа над проектом (3 дня)
Оставляете заявку
Этапы создания дизайн-проекта
Сколько стоит дизайн проект?
Тариф Стандартный
- Срок — 3 рабочих дня
- Комната — до 25 м²
- Без правок в рамках услуги
- Оплата — 100% перед стартом
Сложные объекты и большая площадь — по индивидуальному расчёту.
Примеры визуализаций
Когда экспресс-дизайн нужен именно вам
- Ремонт уже начался, а проекта ещё нет — нужно решение «здесь и сейчас»
- Вы выбираете мебель и хотите убедиться, что всё поместится и будет удобно
- Трудно представить, как будет выглядеть комната — нужна визуализация перед покупками
Ограничения услуги
- Без правок в рамках услуги
- Без рабочей документации
- Без узаконивания перепланировок и подбора сметы
Можно расширить
- Платные доработки (по отдельному ТЗ)
- Полный проект с чертежами
- Авторское сопровождение и подбор
Готовы увидеть свою комнату через 3 дня?
Оставьте контакты — менеджер уточнит детали и стартуем сегодня.
FAQ
Часто задаваемые вопросы